
MIL-PRF-81757/1E
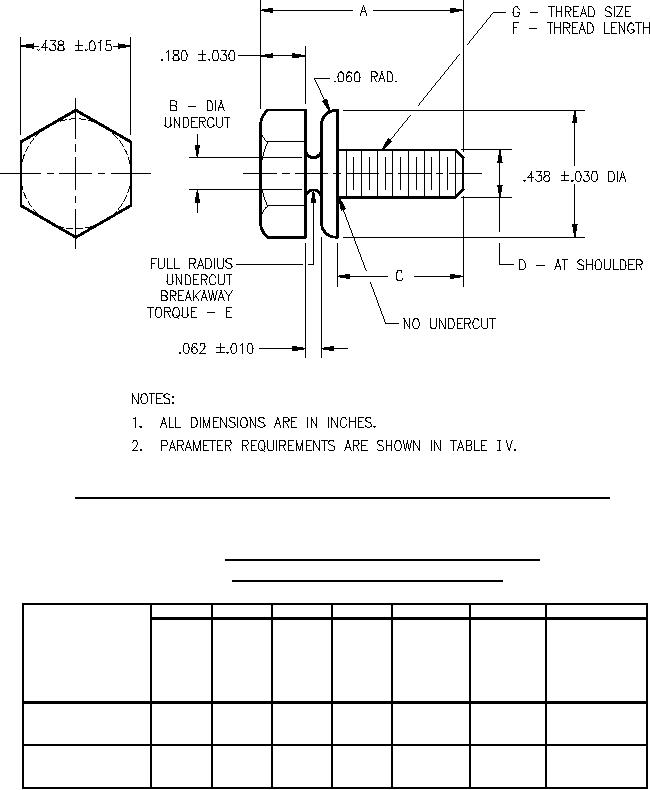
FIGURE 4. Terminal screws (breakaway head) (PINs M81757/1-9 and M81757/1-10).
TABLE IV. Parameter requirements for terminal screws
(PINs M81757/1-9 and M81757/1-10).
A
B
C
D
E
F
G
PART OR
IDENTIFYING
HEAD
THREAD
NUMBER
BREAK
FULL
THREAD
.002
.004
(PIN)
REF
MAX
TORQUE
LENGTH
EXTERNAL
(INCH)
(INCH)
(IN LBS)
(INCH)
NO
(INCH)
(INCH)
.400 Min
8-32 UNC-3A
M81757/1-9
.766
.112
.466
.164
38 Min
48 Max
.440 Min
10-32 NF-3A
M81757/1-10
.806
.128
.500
.188
55 Min
72 Max
4
For Parts Inquires submit RFQ to Parts Hangar, Inc.
© Copyright 2015 Integrated Publishing, Inc.
A Service Disabled Veteran Owned Small Business